EIN ZUHAUSE HABEN

in dem man sich über Generationen wohlfühlen kann!

HOCHWERTIGE BAUWEISE

Bei Miete oder Kauf eines Objektes ist vor allem die Qualität entscheidend. 

Unsere Wohnungen wurden hochwertig ausgestattet und mit einheimischen Firmen gebaut.

Dabei war uns die Liebe zum Detail ein großes Anliegen!

So bestehen Werte über Generationen.

MITTEN IN STROBL AM WOLFGANGSEE

Wo möchte ich wohnen?

Wie wär's in einem Ort mit Zukunft, guter Infrastruktur und dann noch in Seenähe?

Na dann,... 

Willkommen Zuhause!

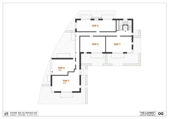
Die Aufteilung

So wohnt man gerne...

Jeder Mensch ist anders. 

So birgt auch jede unserer Wohnungen eine Besonderheit in sich... Typsache eben :)

TOP 1

Die "große Kleine"

TOP 1 bietet viel Platz auf 50qm.

1 Vorraum 

1 Schlafzimmer 

1 Badezimmer mit WC, Waschtisch, Dusche mit Glastrennwand und Anschlüsse für Waschmaschine & Trockner 

1 Arbeitsraum mit traumhafter Aussicht 

1 großzügiger Wohn- / Essbereich inklusive Küchenzeile (Induktionskochfeld, Backofen, Geschirrspüler, Kühl- /Gefrierkombi, LED Arbeitsbeleuchtung, u.v.m.)

 

Rund 62qm Terrassenflächen ergänzen das perfekte Wohlfühlkonzept dieser Wohnung!

 

TOP 2

Licht & Sonne genießen

In TOP 2 wohnst du auf rund 54m2

1 Vorraum 

1 Schlafzimmer 

1 Badezimmer mit Dusche, Waschtisch und Anschlüsse für Waschmaschine & Trockner

1 WC

1 Abstellraum

1 großzügiger Wohn- / Essbereich inklusive Küchenzeile (Induktionskochfeld, Backofen in praktischer Arbeitshöhe, Geschirrspüler, Kühl- /Gefrierkombi, LED Arbeitsbeleuchtung, u.v.m.)

 

Bei zusätzlich rund 53qm Terrassenflächen kannst du dich so richtig entspannen & frei fühlen!

 

TOP 3

Hallo Sonnenschein!

Lass die Sonne in dein Herz!  TOP 3 - rund 50qm

1 Vorraum 

1 Schlafzimmer 

1 Badezimmer mit WC, Waschtisch, Dusche mit Glastrennwand und Anschlüsse für Waschmaschine & Trockner 

1 Abstellraum

1 großzügiger Wohn- / Essbereich inklusive Küchenzeile (Induktionskochfeld, Backofen, Geschirrspüler, Kühl- /Gefrierkombi, LED Arbeitsbeleuchtung, u.v.m.)

 

Viel Sonnenschein auf 38qm Terrassenflächen genießen!

 

TOP 4

On the Top...

Traum-Panorama Wohnung im Dachgeschoß 79qm

1 Vorraum 

2 Schlafzimmer 

1 Badezimmer mit WC, Waschtisch, Dusche mit Glastrennwand und Anschlüsse für Waschmaschine & Trockner, Handtuchtrockner 

1 Abstellraum

1 großzügiger Wohn- / Essbereich inklusive Küchenzeile (Induktionskochfeld, Backofen, Geschirrspüler, Kühl- /Gefrierkombi, LED Arbeitsbeleuchtung, u.v.m.)

 

Sonne, Süden und traumhafter Bergblick, geschützte Balkonflächen im Ausmaß von rund 12qm

 

TOP 7

Die Große mit echt viel Terrasse...

Maisonettwohnung mit rund 98qm

1 Vorraum 

1 Abstellraum

1 Gästebad mit Dusche, Waschtisch & WC

3 Schlafzimmer 

1 Badezimmer mit WC, Waschtisch, Dusche, Badewanne und Anschlüsse für Waschmaschine & Trockner, 

1 großzügiger Wohn- / Essbereich inklusive Küchenzeile & Insel (Induktionskochfeld, Backofen, Geschirrspüler, Kühl- /Gefrierkombi, LED Arbeitsbeleuchtung, u.v.m.) 

 

Quasi ein kleines Haus mit Garten: TOP 7 mit 90qm Dachterrasse

 

Willkommen Zuhause!

 

TG Abfahrt

Kellerabteile

TOP 1 / rund 50qm
TOP 2 / rund 54qm
TOP 3 / rund 48qm
TOP 4 / rund 79qm
TOP 7 / rund 98qm

Ich bin damit einverstanden, dass diese Daten zum Zweck der Kontaktaufnahme gespeichert und verarbeitet werden. Mir ist bekannt, dass ich meine Einwilligung jederzeit widerrufen kann.*

* Kennzeichnet erforderliche Felder
Vielen Dank für Ihr Interesse an unseren Wohnungen! Wir werden uns so schnell wie möglich bei Ihnen melden!

Wir benötigen Ihre Zustimmung zum Laden der Übersetzungen

Wir nutzen einen Drittanbieter-Service, um den Inhalt der Website zu übersetzen, der möglicherweise Daten über Ihre Aktivitäten sammelt. Bitte überprüfen Sie die Details in der Datenschutzerklärung und akzeptieren Sie den Dienst, um die Übersetzungen zu sehen.